NH Hotel Colleoni Milano
All’interno di una chiesa sconsacrata abbiamo realizzato due livelli di impalcati destinati a ospitare eleganti suite, inseriti nel rispetto delle volumetrie e della monumentalità dello spazio originario. Sono state inoltre progettate e realizzate le strutture per la copertura delle nuove aree dedicate al ristorante e alla sala congressi, contribuendo alla trasformazione dell’edificio.
PROGETTAZIONE
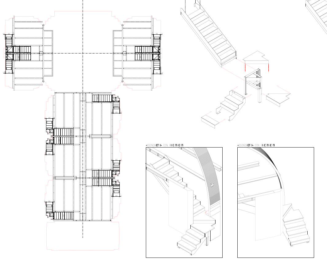
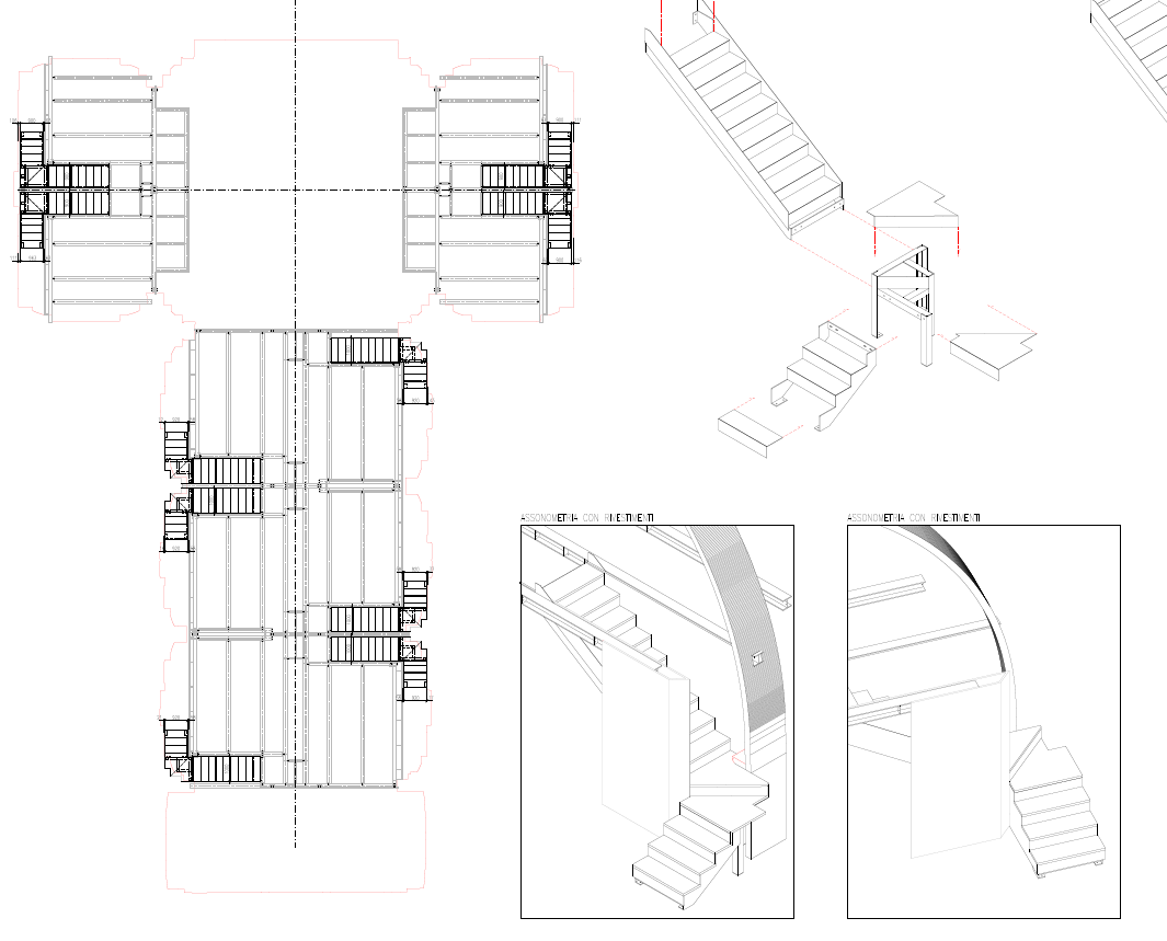
SCALA INTERNA
La scala elicoidale si sviluppa verticalmente all’interno di un volume cilindrico rivestito in lamiera stirata, inserito nella grande apertura della facciata. La struttura metallica disegna un movimento continuo e avvolgente, mentre il rivestimento traforato filtra la luce e lascia intravedere l’andamento della scala all’interno.
PROGETTAZIONE SCALA INTERNA



















